Strona: Regulamin konkursu / Competition rules / Koło Naukowe Mechaniki Budowli
Regulamin konkursu / Competition rules
Wersja polska (English version below)
§ 1 Postanowienia ogólne
- Organizatorami konkursu „Stress and Break”, zwanego dalej „Konkursem”, są Wydział Budownictwa, Inżynierii Środowiska i Architektury Politechniki Rzeszowskiej oraz Koło Naukowe Mechaniki Budowli Politechniki Rzeszowskiej.
- Konkurs odbędzie się w dniach 16–17.04.2026 r. w budynku P. przy ul. Poznańskiej 2 w Rzeszowie.
- Konkurs ma charakter międzynarodowy. Do udziału zaproszeni są również studenci uczestniczący w programach mobilności, w szczególności Erasmus+ oraz PROM (NAWA).
- Celem Konkursu jest zaprojektowanie i wykonanie modelu dźwigara kratowego z drewna iglastego o maksymalnej efektywności nośnej.
§ 2 Uczestnictwo
- W Konkursie uczestniczą zespoły studentów (2-3 osoby).
- Liczba zespołów jest ograniczona; decyduje kolejność zgłoszeń.
- Udział w Konkursie oznacza akceptację regulaminu
§ 3 Przebieg Konkursu
- Konkurs ma charakter dwudniowy:
- Dzień 1: wykonanie modelu (maks. 8 h),
- Dzień 2: próby obciążeniowe.
- Konstrukcja musi zostać wykonana w całości na miejscu. Po zakończeniu budowy niedozwolone są jakiekolwiek modyfikacje.
§ 4 Materiały i wykonanie
- Konstrukcja wykonywana jest wyłącznie z materiałów dostarczonych przez Organizatora.
- Dostępne przekroje elementów drewnianych:
10×10 mm - 4 pręty 1 m,
10×5 mm - 4 pręty po 1 m,
5×5 mm - 4 pręty po 1 m.
Liczba elementów jest ograniczona.
- Dopuszcza się stosowanie kleju wyłącznie w węzłach.
- Połączenia mechaniczne są niedozwolone.
- Dopuszcza się użycie własnych narzędzi.
§ 5 Wymagania konstrukcyjne
- Konstrukcja musi mieć postać przestrzennego dźwigara kratowego.
- Wymagania geometryczne:
- rozpiętość: 100 cm ± 5 mm (osiowy wymiar punktów podparcia wynosi 95 cm),
- wysokość: 20–30 cm ± 5 mm,
- minimalna szerokość dźwigara (obrys zewnętrzny): 13 cm ± 5 mm,
- maksymalna szerokość dźwigara (obrys zewnętrzny): 20 cm ± 5 mm.
- Konstrukcja musi mieścić się w granicach geometrycznych przedstawionych na poniższym schemacie (wymiary podano w cm):

- Podparcie realizowane jest na końcach dźwigara w wyznaczonych obszarach.
- Obciążenie przykładane jest liniowo w środkowej części rozpiętości.
- Konstrukcja musi umożliwiać stabilne przyłożenie obciążenia.
§ 6 Próba obciążeniowa
- Badanie prowadzone jest w maszynie wytrzymałościowej poprzez stopniowe zwiększanie obciążenia.
- Rejestrowane są:
- maksymalna siła niszcząca,
- przemieszczenie pionowe w środku rozpiętości.
- Przemieszczenie odczytywane jest z układu pomiarowego (siłownika) maszyny wytrzymałościowej.
- Sztywność konstrukcji oceniana jest na podstawie przemieszczenia przy obciążeniu 500 N.
- Za zniszczenie uznaje się utratę nośności/stateczności konstrukcji lub osiągnięcie granicznego przemieszczenia wynoszącego 8 cm.
§ 7 Ocena
- Podstawowym kryterium oceny jest efektywność konstrukcji:
R=F/m,
gdzie F - maksymalna siła niszcząca, m - masa konstrukcji.
- W przypadku dwóch jednakowych wyników, pomocniczym kryterium jest przemieszczenie w środku rozpiętości dźwigara uzyskane przy obciążeniu 500 N.
§ 8 Komisja konkursowa
- Konkurs nadzoruje Komisja Konkursowa powołana przez Organizatorów.
- Komisja dokonuje pomiarów, oceny oraz rozstrzyga kwestie sporne.
- Decyzje Komisji są ostateczne.
§ 9 Postanowienia końcowe
- Uczestnicy zobowiązani są do przestrzegania zasad bezpieczeństwa.
- Organizatorzy zastrzegają sobie prawo do interpretacji i zmian regulaminu.
- Uczestnicy wyrażają zgodę na wykorzystanie wizerunku w materiałach promocyjnych.
§ 10 Pytania i wyjaśnienia do regulaminu
- Uczestnicy mają prawo zadawać pytania dotyczące regulaminu Konkursu.
- Pytania należy kierować drogą elektroniczną na adres knmb@prz.edu.pl, nie później niż na 2 dni przed rozpoczęciem Konkursu.
- Odpowiedzi będą publikowane w formie zbiorczej na oficjalnych kanałach informacyjnych Konkursu.
- Opublikowane odpowiedzi stanowią wiążącą interpretację regulaminu.
English version (Polish version above)
§ 1 General Provisions
- The organizers of the “Stress and Break” competition, hereinafter referred to as the “Competition”, are the Faculty of Civil and Environmental Engineering and Architecture of Rzeszów University of Technology and the Student Scientific Association of Structural Mechanics at Rzeszów University of Technology.
- The Competition will take place on 16–17 April 2026 in building P at 2 Poznańska Street in Rzeszów.
- The Competition has an international character. Students participating in mobility programs, in particular Erasmus+ and PROM (NAWA), are also invited to participate.
- The objective of the Competition is to design and construct a model of a truss girder made of softwood with maximum structural efficiency.
§ 2 Participation
- The Competition is open to student teams (2–3 members).
- The number of teams is limited; participation is determined by the order of registration.
- Participation in the Competition constitutes acceptance of these regulations.
§ 3 Course of the Competition
- The Competition is conducted over two days:
- Day 1: model construction (max. 8 hours),
- Day 2: load testing.
- The structure must be entirely constructed on site. After completion of construction, no modifications are allowed.
§ 4 Materials and construction
- The structure must be made exclusively from materials provided by the Organizer.
- Available cross-sections of wooden elements:
10×10 mm – 4 members of 1 m,
10×5 mm – 4 members of 1 m,
5×5 mm – 4 members of 1 m.
The number of elements is limited.
- Adhesive may be used only at the joints.
- Mechanical connections are not allowed.
- The use of personal tools is permitted.
§ 5 Structural requirements
- The structure must take the form of a spatial truss girder.
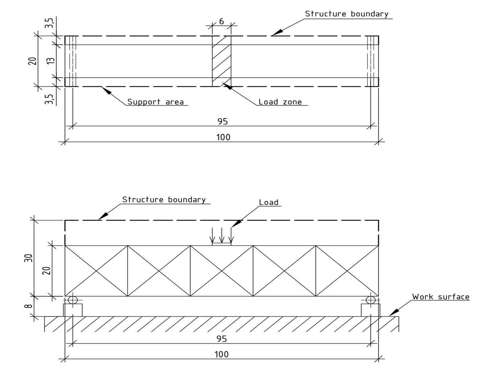
- Geometric requirements:
- span: 100 cm ± 5 mm (the center-to-center distance between supports is 95 cm),
- height: 20–30 cm ± 5 mm,
- minimum girder width (external outline): 13 cm ± 5 mm,
- maximum girder width (external outline): 20 cm ± 5 mm.
- The structure must fit within the geometric limits shown in the diagram below (dimensions in cm):
- Supports are located at both ends of the girder within designated areas.
- The load is applied linearly at mid-span.
- The structure must allow stable application of the load.
§ 6 Load test
- The test is carried out using a testing machine with gradually increasing load.
- The following are recorded:
- maximum failure load,
- vertical displacement at mid-span.
- Displacement is measured using the actuator of the testing machine.
- The stiffness of the structure is evaluated based on displacement under a load of 500 N.
- Failure is defined as loss of load-carrying capacity/stability or reaching a limit displacement of 8 cm.
§ 7 Evaluation
- The primary evaluation criterion is structural efficiency:
R = F/m,
where F is the maximum failure load and m is the mass of the structure.
- In case of equal results, the auxiliary criterion is the displacement at mid-span under a load of 500 N.
§ 8 Competition Committee
- The Competition is supervised by a Competition Committee appointed by the Organizers.
- The Committee performs measurements, evaluation, and resolves disputes.
- The Committee’s decisions are final.
§ 9 Final provisions
- Participants are required to comply with safety regulations.
- The Organizers reserve the right to interpret and amend these regulations.
- Participants consent to the use of their image for promotional purposes.
§ 10 Questions and clarifications
- Participants have the right to ask questions regarding the Competition regulations.
- Questions should be submitted electronically to knmb@prz.edu.pl no later than 2 days before the start of the Competition.
- Answers will be published collectively on the official communication channels of the Competition.
- Published answers constitute a binding interpretation of the regulations.